Xu hướng xây dựng nhà phố 2 mặt tiền ngày càng được chủ đầu tư tại TP.HCM quan tâm bởi sự tiện lợi trong sinh hoạt, khả năng lấy sáng – lấy gió vượt trội và giá trị thẩm mỹ cao. Mẫu nhà 3 tầng 5x17m, thiết kế 2 mặt tiền dưới đây là một trong những thiết kế nổi bật, phù hợp với những khu đất có khoảng sân rộng, mặt tiền thông thoáng, thích hợp cho gia đình trẻ hoặc gia đình nhiều thế hệ mong muốn một không gian sống thoải mái, hiện đại và tiện nghi.
Với kiến trúc trẻ trung, hình khối mạnh mẽ, không gian mở và bố trí công năng vô cùng khoa học, mẫu nhà 3 tầng này không chỉ mang đến trải nghiệm sống chất lượng mà còn nâng tầm giá trị khu đất lên đáng kể.

Mẫu Nhà 3 Tầng 5x17m – Giải Pháp Xây Dựng Nhà 2 Mặt Tiền
Kiến trúc mặt tiền hiện đại – Khẳng định phong các độc đáo của gia chủ
Phối cảnh 3D mặt tiền ngôi nhà gây ấn tượng mạnh mẽ bởi thiết kế hiện đại, mạch lạc và tối giản, sử dụng các khối hình học rõ ràng để tạo nên sự chắc chắn cho toàn bộ công trình. Thiết kế mẫu nhà theo tông màu trắng chủ đạo, kết hợp viền xanh và mảng gỗ ốp trần ban công tạo nên cảm giác thanh thoát, trẻ trung nhưng vẫn rất sang trọng.

Mẫu Nhà 3 Tầng 5x17m – Giải Pháp Xây Dựng Nhà 2 Mặt Tiền
Thiết kế mẫu nhà 2 mặt tiền mang đến lợi thế vượt trội về thẩm mỹ và công năng sử dụng, mở ra không gian thoáng đãng ở cả hai hướng:
- Giúp tối ưu ánh sáng tự nhiên vào toàn bộ các phòng
- Lưu thông gió liên tục, giảm nhiệt cho ngôi nhà – phù hợp khí hậu nóng ẩm của TP.HCM
- Mang đến tầm nhìn rộng rãi, bốn mùa gần gũi với thiên nhiên
Các khoảng ban công rộng được thiết kế tinh gọn với lan can kính, lam gỗ và mảng xanh trang trí, tạo điểm nhấn mềm mại cho mặt tiền nhà. Dọc thân nhà là các thanh lam dọc, vừa tạo hiệu ứng chiều cao, vừa che nắng hiệu quả cho không gian bên trong.
Tầng trệt dùng hệ thống cửa kính khung nhôm lớn, giúp kết nối trực tiếp giữa không gian nội thất và khoảng sân rộng xung quanh nhà, tạo cảm giác mở rộng tối đa cho khu vực phòng khách và phòng bếp.
>>> Tham khảo đơn giá xây dựng nhà tại TP.HCM:
Khoảng sân rộng – Ưu điểm hiếm có cho nhà phố tại Tp.HCM
Một trong những điểm khác biệt của mẫu nhà 5x17m này là việc được bố trí trong một khuôn viên sân vườn rộng gồm:
- Sân trước đậu ô tô, đưa xe ra vào thuận tiện
- Sân sau thoáng, là khu vực lý tưởng cho giặt phơi hoặc thiết kế tiểu cảnh
- Sân bên hông nhà, tạo hành lang thoáng tự nhiên, tăng diện tích tiếp xúc không gian xanh
Nhờ đó, công năng bên trong nhà trở nên đặc biệt thoải mái và không bí như các mẫu nhà phố thông thường nằm sát tường ranh.

Khoảng sân rộng – Ưu điểm hiếm có cho nhà phố tại Tp.HCM
Bố trí công năng tối ưu cho gia đình 4-6 người
Xây dựng nhà phố trên diện tích 5x17m, kiến trúc sư Việt Nhật Group đã tối ưu từng mét vuông để tạo nên không gian sống hoàn chỉnh, đầy đủ tiện ích cho gia đình từ 4 đến 6 thành viên chung sống.
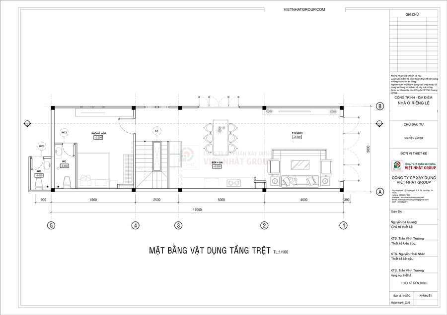
Tầng trệt – Liên kết không gian và tràn ngập ánh sáng
Thiết kế hệ cửa đi lớn xung quanh ngôi nhà, mọi không gian ở tầng trệt đều kết nối trực tiếp với sân ngoài. Đây là ưu điểm lớn giúp căn nhà luôn tràn ngập ánh sáng, thông thoáng và dễ dàng lưu thông không khí tự nhiên.
Công năng tầng trệt gồm:
- Phòng khách rộng đặt gần cửa chính, thuận tiện đón tiếp khách đến thăm nhà.
- Phòng bếp – ăn tiện nghi, mở tầm nhìn ra sân bên hông nhờ hệ thống cửa lớn.
- Phòng ngủ có WC khép kín, phù hợp cho người lớn tuổi hoặc khách ở lại qua đêm.
- WC ngoài sân sau, tiện lợi khi gia đình sinh hoạt, làm tiệc hoặc sử dụng khu vực ngoài trời.
KTS tính toán phương án thiết kế kỹ lưỡng, đảm bảo tất cả khu vực đều có ánh sáng tự nhiên và tầm nhìn thông thoáng khi sử dụng ở từng phòng công năng.

Tầng trệt – Liên kết không gian và tràn ngập ánh sáng
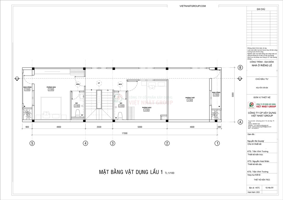
Lầu 1 – Không gian riêng tư ấm cúng
Lầu 1 được bố trí ba không gian chính, rất phù hợp với gia đình có 4 đến 6 thành viên.
- Phòng thờ đặt sát ban công, là vị trí đón gió, lấy sáng tốt và phù hợp phong thủy.
- Phòng ngủ 01 với WC khép kín nằm giữa phòng thờ và khu vực cầu thang, đảm bảo sự yên tĩnh và riêng tư.
- Phòng ngủ 02 có WC khép kính và ban công mặt hậu, mang đến sự thoải mái, thoáng đãng và tầm nhìn đẹp.
Việc mỗi phòng ngủ đều được bố trí WC riêng trong phòng giúp tối ưu sự riêng tư, phù hợp phong cách sống của các gia đình trẻ hiện nay.

Lầu 1 – Không gian riêng tư ấm cúng
Lầu 2 – Tầng sinh hoạt linh hoạt
Tầng cao nhất của ngôi nhà được thiết kế theo hướng nghỉ dưỡng và thư giãn. Sân thượng trước rộng rãi, nơi gia chủ có thể bố trí bàn trà, khu BBQ, tiểu cảnh cây xanh hoặc khu vườn nhỏ. Phòng ngủ có WC khép kín nằm ở mặt hậu, thoáng đãng và riêng tư, phù hợp cho người ở lâu dài hoặc khách ghé chơi. Việc kết hợp sân thượng lớn với một phòng ngủ riêng biệt tạo nên sự cân bằng giữa không gian thư giãn và công năng sử dụng.

Lầu 2 – Tầng sinh hoạt linh hoạt
Mẫu nhà lý tưởng cho chủ đầu tư xây dựng nhà ở tại TP.HCM
Mẫu nhà 2 mặt tiền 3 tầng 5x17m là lựa chọn hoàn hảo cho những ai đang tìm kiếm một không gian sống hiện đại, thoáng đãng và tiện nghi tại TP.HCM. Kiến trúc nhà ở hài hòa, mặt tiền đẹp mắt, công năng linh hoạt và khoảng sân rộng chính là điểm cộng lớn giúp ngôi nhà trở thành tổ ấm lý tưởng cho mọi gia đình.
Ngoài ra, mẫu nhà 2 mặt tiền, quy mô xây dựng 1 trệt 2 lầu sân thượng, diện tích 5x17m là mẫu nhà lý tưởng cho chủ đầu tư xây dựng nhà phố tại TP.HCM vì:
- Tối ưu cho quỹ đất có sân rộng:
Với những mảnh đất có khoảng sân lớn, mẫu nhà 2 mặt tiền 3 tầng này là lựa chọn tối ưu, tận dụng tốt ánh sáng và gió tự nhiên, tạo không gian sống chan hòa với thiên nhiên, tách biệt rõ ràng giữa các chức năng sống – nghỉ ngơi – làm việc.
- Không gian mở giúp ngôi nhà luôn mát mẻ:
Nhờ thiết kế hệ thống cửa bao quanh ngôi nhà, giếng trời và ban công rộng, mẫu nhà phố 3 tầng mang lại sự thông thoáng hiếm có, tránh tình trạng bí khí thường gặp ở nhà ống có các công trình xây dựng sát bên.
- Công năng lý tưởng cho gia đình nhiều thế hệ:
Tầng trệt có phòng ngủ khép kín cho người lớn tuổi, lầu 1 dành cho cặp vợ chồng và con cái, lầu 2 linh hoạt cho khách hoặc không gian làm việc – tập luyện.
- Chi phí xây dựng vừa phải – giá trị sử dụng cao:
Với thiết kế gọn gàng, mặt tiền đơn giản nhưng đẹp mắt, chủ đầu tư tiết kiệm được chi phí xây nhà nhưng vẫn sở hữu một căn nhà hiện đại, đẳng cấp.

Thông tin liên hệ Công ty Xây dựng Việt Nhật Group
Nếu bạn đang có nhu cầu xây dựng nhà phố 2 mặt tiền hoặc muốn được tư vấn chi tiết về chi phí – bản vẽ – phong thủy, hãy để Việt Nhật Group đồng hành cùng bạn trong hành trình kiến tạo không gian sống mơ ước.
Từ khóa: xây nhà trọn gói | báo giá xây nhà | sửa nhà trọn gói | chi phí sửa nhà | giá xây nhà phần thô | xây thô và nhân công hoàn thiện































































